
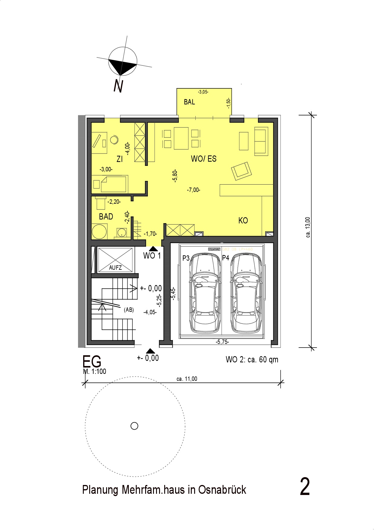
Planung eines Mehrfamilienhauses in Osnabrück 2015
Gegebenheiten
Unbebauter Grundstücksteil am Ende einer geschlossenen Bebauung/ Straßenzeile. Bestandsgebäude auf dem Grundstück, an einer Parallelstraße gelegen.
Bauaufgabe
Planung für ein Mehrfamilienhaus unter Berücksichtigung der Nachbarbebauung und der notwendigen PKW-Stellplätze. Durchgang vom Bestandsgebäude zur Parallelstraße, barrierefreier Zugang.






