Dachterrasse für ein Wohnhaus in Osnabrück, 2012
Gegebenheiten
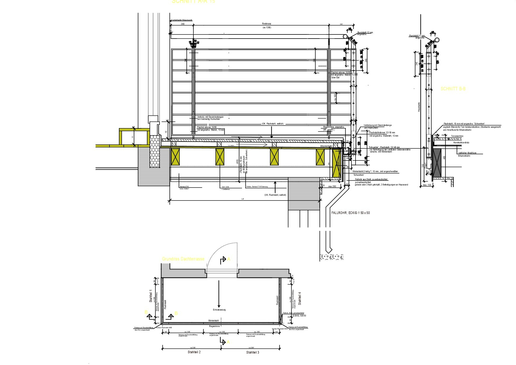
Erker in EG-Wohnung mit Steildach, ungedämmt. Angedacht: Neues Fenster im 1.Obergeschoss…
Bauaufgabe
…nach weiteren Überlegungen:
Rückbau des Erkerdaches bis auf die waagerechte Holzkonstruktion. Statische Ertüchtigung für Aufdoppelung mit Querhölzern im Gefälle als Grundlage für eine kleine Dachterrasse. Wärmedämmung zwischen Holzkonstruktion. Umlaufendes offenes Stahlgeländer.





