




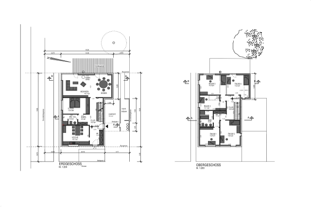
Neubau eines 1 – 2- Familienwohnhauses, Westerkappeln, 2012/ 2013
Neubau mit großem Raumprogramm (3 Kinderzimmer, 2 Arbeitszimmer) mit Option zur späteren Teilung in 2 unabhängigen Wohneinheiten, flexible Raumnutzungen. Schmales Baugrundstück. Putzfassade mit Wärmedämmverbundsystem und Holzschiebeläden als Sichtschutz, fassadenbündig/ Farbfelder. Große Fenster auf der Westseite mit außenliegendem Sonnenschutz. Einbau von dezentralen Lüftungsanlagen und eines Kaminofens; vorbereitet für Option zur späteren Umnutzung als komplette Heizungsanlage, Solarthermie, Carport.



